IZKUŠNJA IN UTRIP MESTA
Leuven je majhno študentsko mesto, polno raznolikih mikroambientov in ljudi. Ker je to študentsko mesto, je veliko študentov iz celega sveta. Samo mesto je drugačno od drugih belgijskih mest – prijetno, zeleno in mladostno. Ob vikendih, ko belgijski študentje odidejo domov, je mesto kar prazno, vednar me to ni motilo. Najbolj me je navdušilo, kako hitro se lahko premikaš med različnimi deli mesta. Prehodiš ga lahko skoraj v celoti v dobri uri in skoraj vse je na dosegu roke.
Bivala sem v manjšem privatnem študentskem domu za 12 ljudi,. Najemnina je znašala 580 € s stroški in imela sem svojo kopalnico. Dom je bil za belgijske standarde zelo čist, imel pa je tudi skupen atrij, kjer smo se veliko družili. Ker sem bila v domu s samo z Belgijkami, sem bila za vikende večinoma sama. Ker sem bila pozna s prijavami za javne študentske domove sem Stanovanje našla preko Facebooka. drugim svetovala, naj si nastanitev zagotovijo čim prej, saj je za domove veliko povpraševanja (rok za prijavo v štuentske domove je na koncu aprila)
Študentsko življenje v Leuvnu je bilo prijetno in varno, tudi ponoči se ni bilo treba bati hoditi po mestu. Veliko druženja je potekalo v barih, predvsem na Oude Markt. Jaz sem se družila predvsem s sošolci s fakultete. Belgijci so zelo prijazni in so nas Erasmus študente hitro sprejeli, delo z njimi pa tudi ni bil problem.
Javni prevoz z avtobusom je primerljiv z ljubljanskim – pogosto prihaja do zamud ali odpovedi, zato je priporočljivo, da se po mestu prevažaš s kolesom. Sama sem kolo dobila šele v drugem semestru, kar je močno izboljšalo mojo fleksibilnost.
Hrana v Belgiji je bila cenovno primerljiva Sloveniji. Po mestu je veliko menz, imenovanih Alma, kjer strežejo poceni kosila (okoli 5 €), prav tako pa so študentske ugodnosti v nekaterih restavracijah. Moja najljubša je bila Thai House, kjer stane padthai 5–8 €. Večinoma sem si kuhala doma. Privsakodnevnih opravilh je dobro upoštevati tudi pranje perila – nekateri domovi nimajo svoje pralnice, zato je potrebno uporabiti javno pralnico, kar lahko predstavlja dodaten strošek (okoli 5 € za pranje in 5 € za sušenje).
ŠTUDIJ
Študirala sem na KU Leuven, Department of Architecture, kjer sem se srečala z nekoliko drugačnim pristopom k študiju arhitekture. Fakulteta ni centralizirana za arhitekturo, zato so predavanja razporejena po različnih stavbah na kampusu. Na začetku je bilo organizacijsko nekoliko zahtevno, a se hitro navadiš.
Izbrala sem si zelo raznolike predmete, najbolj pa sem uživala pri predmetih, povezanih s kulturno dediščino in konstrukcijo prenov. Predavanja so bila zelo kakovostna, s konkretnimi praktičnimi vsebinami, zaradi katerih sem imela občutek, da sem odnesla veliko uporabnega znanja, ki ga bom lahko neposredno uporabila v svoji arhitekturni praksi.
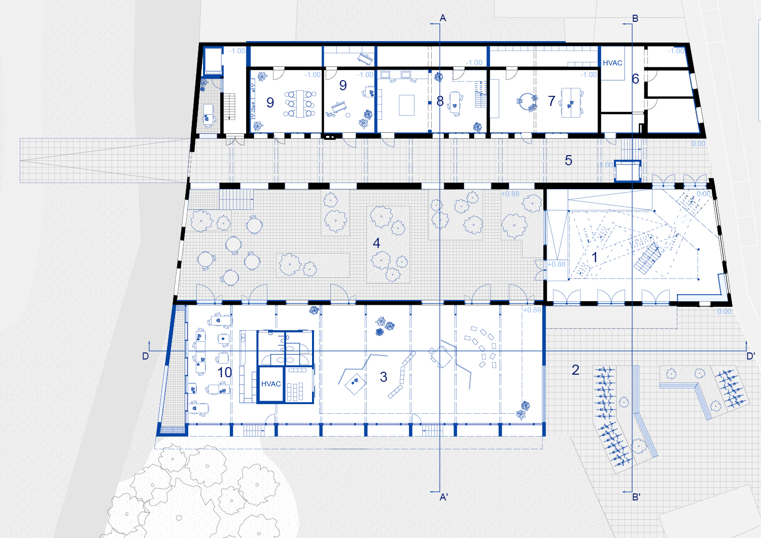
Seminarji potekajo drugače kot v Sloveniji – na magisteriju se študentje odločijo za smer (urbanizem, dizajn ali konstrukcija) in so nato tri semestre usmerjeni v to področje. Kot Erasmus študentka sem imela možnost, da se v drugem semestru iz urbanističnega seminarja preusmerim v dizajn, ki je vključeval tudi prenove. Ta seminar mi je bil veliko bolj všeč.
Na fakulteti me je navdušilo povezovanje med različnimi smermi. Seminar je bil obvladljiv in fleksibilen – projekt smo dokončali v enem semestru, brez prevelikega ukvarjanja z izpiljenimi grafičnimi podobami. Vsak študent je lahko uporabil svoj izrazni slog: če si rad risal, si risal, če si rad modeliral, si modeliral. Poseben poudarek je bil tudi na inclusive design, kar je na naši falkulteti pogosto zapostavljeno.
Zaključek seminarja ni vključeval razstave. Prednost tega je, da smo projekt končali pred začetkom izpitnega obdobja. To nam je omogočilo skoraj dva tedna mirne priprave na druge izpite. Seminar sicer ni bil srce fakultete, a je povezal znanje iz različnih predmetov in omogočil ustvarjanje, ki je spodbujalo razvoj osebnega stila in kreativnosti.









