IZKUŠNJA IN UTRIP MESTA
Barcelona me je presenetila s svojo velikostjo in raznolikostjo. Ima izjemen ritem – tako živahen kot sproščen – in prav ta kontrast ji daje značaj. Že po nekaj dneh se da začutit, da gre za mesto, kjer se arhitektura, kultura in vsakdanje življenje prepletajo v nečem zelo barvitem – pisanem. Kot kraj za izmenjavo je skoraj idealna – vedno se nekaj dogaja, ljudje so odprti, dejavnosti je malo morje, vsak kotiček je poln energije.
Živel sem v soseski Eixample, na Rocafortu – lokacija ki se je izkazala za popolno. Do fakultete sem imel približno pol ure z javnim preovozom (metro), hkrati pa sem bil blizu središča mesta. V stanovanju sem imel še tri sostanovalce. Enega Angleža, Nemca, eden pa je prihajal iz Hong Konga in mislim da je bila ravno ta kulturna mešanica ena lepših plati izmenjave. Odnos med nami je bil sproščen, pogovori pa zanimivi in neskončno raznoliki.
Na fakulteti je bilo vse zelo dobro organizirano. Ni bilo nepotrebnega kompliciranja, tudi formalnosti so šle večinoma gladko – razen NIE številka (identifikator za tujce), je zahteval goro potrpljenja. Moj nasvet naslednjim: začnite s papirji zgodaj, prav tako z iskanjem stanovanja, dobra in ugodna hitro poidejo.
Kar zadeva Barcelono samo – težko bi izpostavil samo eno stvar. Arhitektura je neverjetna tako po količini kot po raznolikosti in seveda unikatnosti ter kvaliteti. Vreme je skoraj vsak dan prijetno, morje pa vedno blizu. Ritem mesta te hitro potegne vase: Španci so temperamentni, hkrati znajo uživat in ne hitijo brez potrebe – nalezljiva kombinacija. Če bi moral izpostavit eno stvar, bi rekel, da ne bodi zadržan, pristopi do ljudi (tudi domačinov !!), sprašuj, raziskuj – izmenjava toliko da kot ji odpreš vrata.
FAKULTETA IN ŠTUDIJSKI PROCES
Na univerzi Ramon Llull, La Salle – fakulteti za arhitekturo (ETSALS), je študij razdeljen med precej raznolike predmete – od urbanističnih, tehničnih do zgodovinskih ali oblikovnih – kar si izbereš. Dela se veliko v skupinah, pogosto tudi v parih, kar daje izmenjavi dodatno socialno dimenzijo in ustvarja priložnosti za navezovanje stika. Program je zelo mednaroden, hitro se vzpostavi stik z ljudmi iz Evrope in sveta širše, kar v resnici močno vpliva na način razmišljanja o arhitekturi.
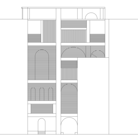
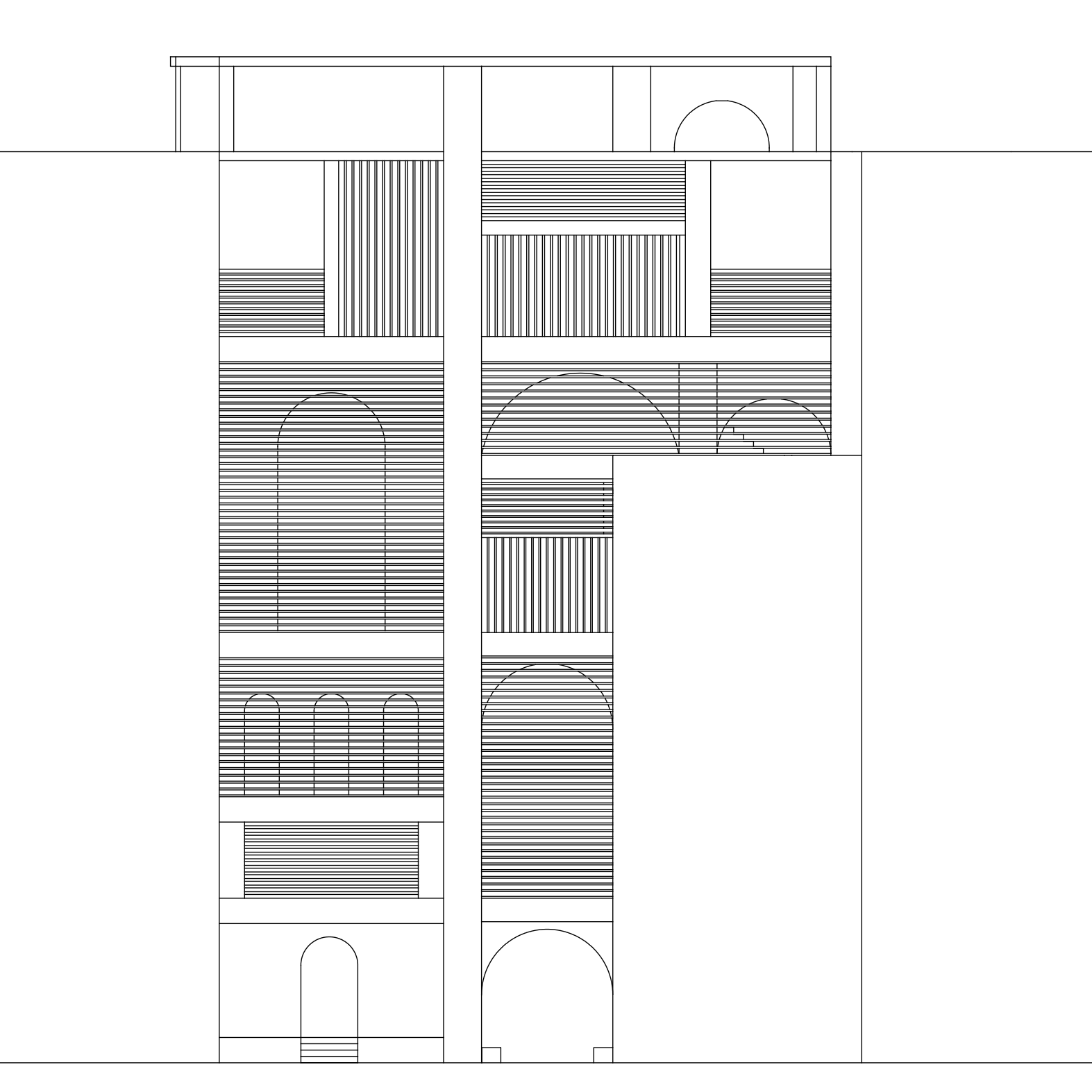
V drugem semestru sem pri predmetu Design Studio 8 (seminar 4 letnika) delal projekt z naslovom »Topografija skupnosti«, temelječ na metodi ki so jo imenovali Superlocal. Gre za pristop pri katerem se začne z analizo vernakularnega – v mojem primeru arabske hiše z notranjim atrijem – da bi razumel prostorske, klimatske in družbene principe, ki oblikujejo vsakdanje življenje. Ti principi se nato pevedejo v sodoben brezkontekstni prototip, ki se v zadnji fazi prilagodi konkretni lokaciji.
Moj projekt je kreiral community center v starem Kairu – urbani katalizator, ki ohranja logiko atrija kot središča družbenega dogajanja. Prostor je organiziran vertikalno: spodaj se odpirajo javni programi, višja kot so nadstropja bolj postaja program zaseben. Zasnova uporablja lokalne materiale, kamnito bazo in leseno konstrukcijo zgoraj. Zeleni vertikalni zraćniki in kupole skrbijo za naravno prezračevanje in prijektno mikroklimo.
V procesu sem se največ naučil o reinterpretaciji vernakularnih / tradicionalnih elementov. Projekt je nastal skozi številne makte, prereze, črnobele renderje, ki bolj kot materialnost poudarjajo ritem svetlobe, senc, gibanja skozi raumplan.
Če bi moral strnit izkušnjo – La Salle me je naučila opazovati arhitekturo skozi pisano mrežo kultur, ki so sobivale v tistem prostoru. Menim da se me je prav ta raznolikost in pisanost – tako v Barceloni sami kot na fakulteti – najbolj prijela.










